0
3 Pièce(s)
2 Chambre(s)

Grand T3 au dernier étage avec grand balcon et 2 parking

Fenouillet (31150)
Réf : G235

4 chemin de Bruguières, grand T3 de 65 m² idéalement situé à 15 minutes à pied des établissements scolaires (crèche, maternelle, primaire et collège), à 1 km du centre ville et de la zone commerciale de Fenouillet et de son hypermarché AUCHAN ainsi qu' à proximité de la route de Paris et de ses nombreuses entreprises. L'accès à l'autoroute A62 est est très rapide (au niveau du péage de Bruguières). l'arret de bus Tournelle (ligne 59) permet de rejoindre le métro La vache .

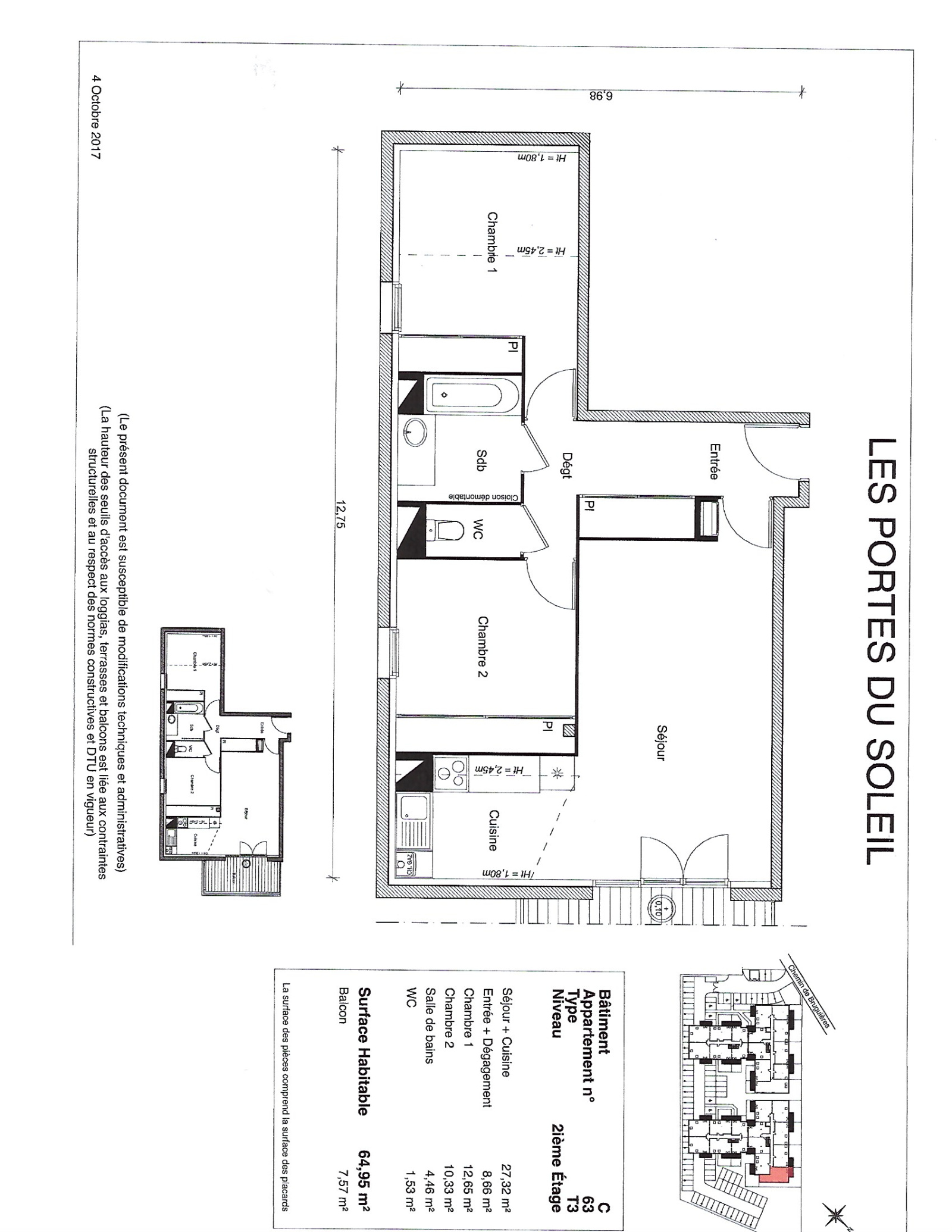
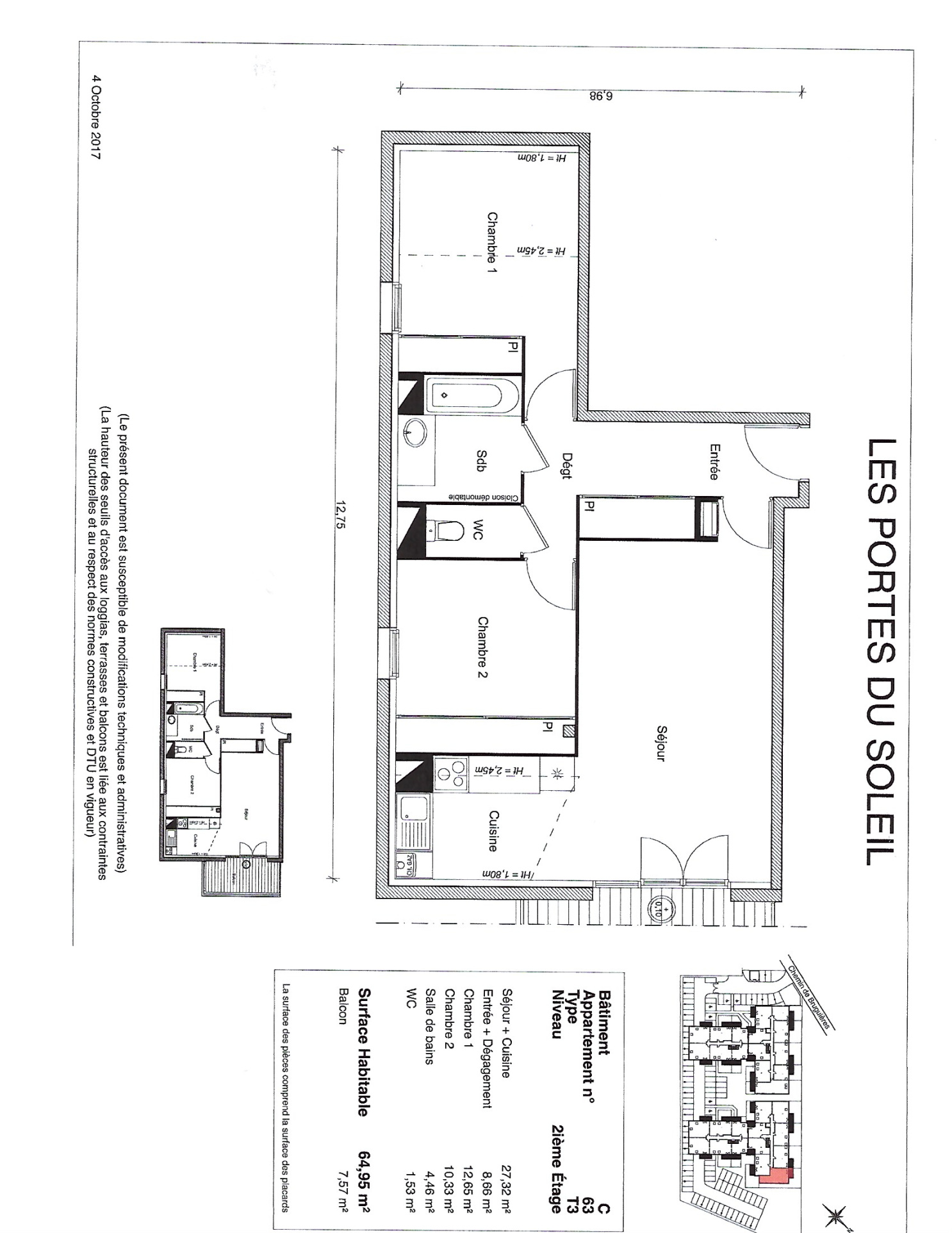
Au 2ème et dernier étage d'une résidence sécurisée récente, cet appartement est composé d'une entrée avec placard désservant un grand séjour/cuisine de 27m² donnant sur le bacon de 7.50 m², (le coin cuisine est équipé de meubles hauts et bas, évier, plaque vitrocéramique, hotte aspirante, réfrigérateur congélateur ..) et d'un coin nuit composé de 2 chambres (12.60 m² et 10.30 m², chacune avec placard, d'une salle de bains avec machine à laver et d'un WC séparé. 2 places de parking extérieures et une cave privative complétent ce bien.

Eau chaude et chauffage individuel par chaudière individuelle gaz

Loyer 719 € Charges Comprises (dont 80 € de provisions pour charges) Frais agence 610 € (dont 170 € d'Etat des Lieux). Dépot de Garantie 639 €

Disponible

Les informations sur les risques auxquels ce bien est exposé sont disponibles sur le site Géorisques : www.georisques.gouv.fr

Contact : 06 95 69 03 22 par SMS


Les informations sur les risques auxquels ce bien est exposé sont disponibles sur le site Géorisques
Ce bien vous intéresse ?
Fieldset par défaut
Fieldset par défaut
Validation

* Champs obligatoires

Contacter l'agence
Validation
Les informations recueillies sur ce formulaire sont enregistrées dans un fichier informatisé par La Boite Immo agissant comme Sous-traitant du traitement pour la gestion de la clientèle/prospects de l'Agence / du Réseau qui reste Responsable du Traitement de vos Données personnelles. La base légale du traitement repose sur l'intérêt légitime de l'Agence / du Réseau. Elles sont conservées jusqu'à demande de suppression et sont destinées à l'Agence / au Réseau. Conformément à la loi « informatique et libertés », vous disposez des droits d’accès, de rectification, d’effacement, d’opposition, de limitation et de portabilité de vos données. Vous pouvez retirer votre consentement à tout moment en contactant directement l’Agence / Le Réseau. Consultez le site https://cnil.fr/fr pour plus d’informations sur vos droits. Si vous estimez, après avoir contacté l'Agence / le Réseau, que vos droits « Informatique et Libertés » ne sont pas respectés, vous pouvez adresser une réclamation à la CNIL. Nous vous informons de l’existence de la liste d'opposition au démarchage téléphonique « Bloctel », sur laquelle vous pouvez vous inscrire ici : https://www.bloctel.gouv.fr Dans le cadre de la protection des Données personnelles, nous vous invitons à ne pas inscrire de Données sensibles dans le champ de saisie libre.
Ce site est protégé par reCAPTCHA, les Politiques de Confidentialité et les Conditions d'Utilisation de Google s'appliquent.

En Bref

Code postal 31150
Surface habitable (m²) 64,95 m²
Surface loi Boutin (m²) 64,95 m²
Nombre de chambre(s) 2
Nombre de pièces 3
Meublé NON
Etage 2
Nombre de niveaux 1
Vue Dégagée
Nb de salle de bains 1
Cuisine Américaine
Type de cuisine SEMI-EQUIPEE
Mode de chauffage Gaz
Type de chauffage Radiateur
Format de chauffage Individuel
Interphone OUI
Visiophone OUI
Balcon OUI
Terrasse NON
Cave OUI
Nombre de parking 2
Surface cave (m²) 1
Exposition Nord-Est
Année de construction 2019

Infos financières

Loyer CC* / mois 719 €
Honoraires TTC charge locataire 610 €
Dont état des lieux 170 €
Dépôt de garantie TTC 639 €
Charges locatives (Previsionnelles mensuelles les avec regularisation annuelle) 80 €

Energie

Energie
DPE
GES