0
2 Pièce(s)
1 Chambre(s)

Lumineux T2 récent avec balcon et 1 place de parking

Toulouse (31400)
Réf : G265

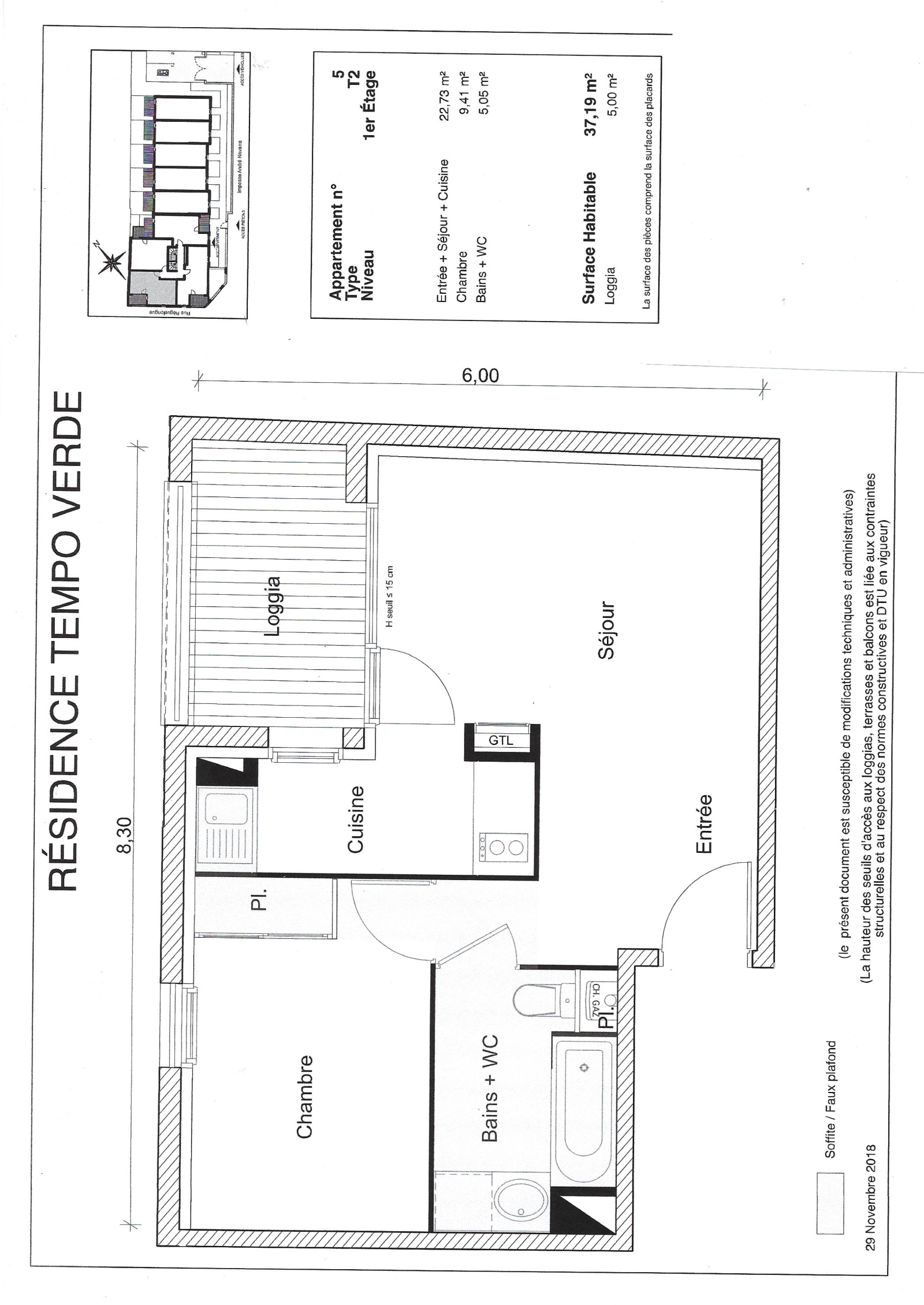
1 Impasse André Navarra, lumineux appartement de type 2 de 37 m², avec balcon et place de parking dans une Résidence récente au centre du quartier Saint Simon, proche des commerces et des écoles, et également à proximité la base de loisirs, le lac et le Golf de la Ramée.

Le quartier est bien désservi par les transports en commun, plusieurs lignes de bus (87, 53 et 58) dont une à seulement 200 m de la Résidence vous permettent de rejoindre le Métro Ligne A station Basso Cambo. Le périphérique sortie 38 est à 7 mm en voiture, le quartier d'activité economique de Basso Cambo avec de nombreuses entreprises est à seulement quelques minutes en voiture ainsi que le secteur commercial de Portet sur Garonne .

Cet appartement se compose d'une belle pièce de vie de 22 m² donnant sur le balcon et permettant d'accèder à la cuisine équipée, installée dans le coin de la pièce, quasiment séparée du séjour.

Un dégagement permet d 'accéder à la salle de bains et à la chambre avec placard

Production d'eau chaude et chauffage par une chaudière Gaz Individuelle.

Une place de parking et un local vélo en extérieur sont rattachés à ce bien.

Loyer Charges comprises 619 € (dont 90 € de provision pour charges).

Dépot de Garantie : 529 € - Frais Agence 485 € dont 112 euros d'état des lieux.

Disponible le 19/02/2026

Contact : 06 95 69 03 22 par SMS

Les informations sur les risques auxquels ce bien est exposé sont disponibles sur le site Géorisques : www.georisques.gouv.fr

Ce bien vous intéresse ?
Fieldset par défaut
Fieldset par défaut
Validation

* Champs obligatoires

Contacter l'agence
Validation
Les informations recueillies sur ce formulaire sont enregistrées dans un fichier informatisé par La Boite Immo agissant comme Sous-traitant du traitement pour la gestion de la clientèle/prospects de l'Agence / du Réseau qui reste Responsable du Traitement de vos Données personnelles. La base légale du traitement repose sur l'intérêt légitime de l'Agence / du Réseau. Elles sont conservées jusqu'à demande de suppression et sont destinées à l'Agence / au Réseau. Conformément à la loi « informatique et libertés », vous disposez des droits d’accès, de rectification, d’effacement, d’opposition, de limitation et de portabilité de vos données. Vous pouvez retirer votre consentement à tout moment en contactant directement l’Agence / Le Réseau. Consultez le site https://cnil.fr/fr pour plus d’informations sur vos droits. Si vous estimez, après avoir contacté l'Agence / le Réseau, que vos droits « Informatique et Libertés » ne sont pas respectés, vous pouvez adresser une réclamation à la CNIL. Nous vous informons de l’existence de la liste d'opposition au démarchage téléphonique « Bloctel », sur laquelle vous pouvez vous inscrire ici : https://www.bloctel.gouv.fr Dans le cadre de la protection des Données personnelles, nous vous invitons à ne pas inscrire de Données sensibles dans le champ de saisie libre.
Ce site est protégé par reCAPTCHA, les Politiques de Confidentialité et les Conditions d'Utilisation de Google s'appliquent.

En Bref

Code postal 31100
Surface habitable (m²) 37,19 m²
Surface loi Boutin (m²) 37 m²
Nombre de chambre(s) 1
Nombre de pièces 2
Meublé NON
Etage 1
Nombre de niveaux 1
Ascenseur OUI
Nb de salle de bains 1
Cuisine Séparée
Mode de chauffage Gaz
Type de chauffage Radiateur
Format de chauffage Individuel
Visiophone OUI
Balcon OUI
Terrasse NON
Cave NON
Nombre de parking 1
Exposition Nord-Est
Année de construction 2020
Quartier SAINT SIMON

Infos financières

Loyer CC* / mois 619 €
Honoraires TTC charge locataire 485 €
Dont état des lieux 112 €
Dépôt de garantie TTC 529 €
Charges locatives (Previsionnelles mensuelles les avec regularisation annuelle) 90 €

Energie

Energie
DPE
GES